潮商

 找回密码
 立即注册

QQ登录

只需要一步,快速开始

搜索
潮商 门户 投资热点 查看内容

南澳岛上的“自然之门”,邂逅北纬23.5°

2019-10-12 09:32| 发布者: admin| 查看: 276| 评论: 0|原作者: admin

摘要: 提示:点击上方"潮商"关注我们 本文经授权转载自“名家志”公众号 解读南澳北回归线标志性雕塑“自然之门”立于海岛,遥呼远山。中国内陆唯一建设在海岛上的北回归线标志雕塑“自然之门”,是汕头第二座北回归线 ...

提示点击上方"潮商"关注我们



本文经授权转载自“名家志”公众号



解读南澳北回归线标志性雕塑“自然之门”


立于海岛,遥呼远山。中国内陆唯一建设在海岛上的北回归线标志雕塑“自然之门”,是汕头第二座北回归线标志塔。


与在1985年建立、位于汕头西郊鸡笼山的北回归线标志塔形成“一东一西”、“一海一山”的城市格调,具科普意义又别具人文性。


细读“自然之门”,我们有更多的发现与思考,设计师对自然文化的研究之深刻,让我们产生更多的感悟和共鸣。


| 雕塑档案

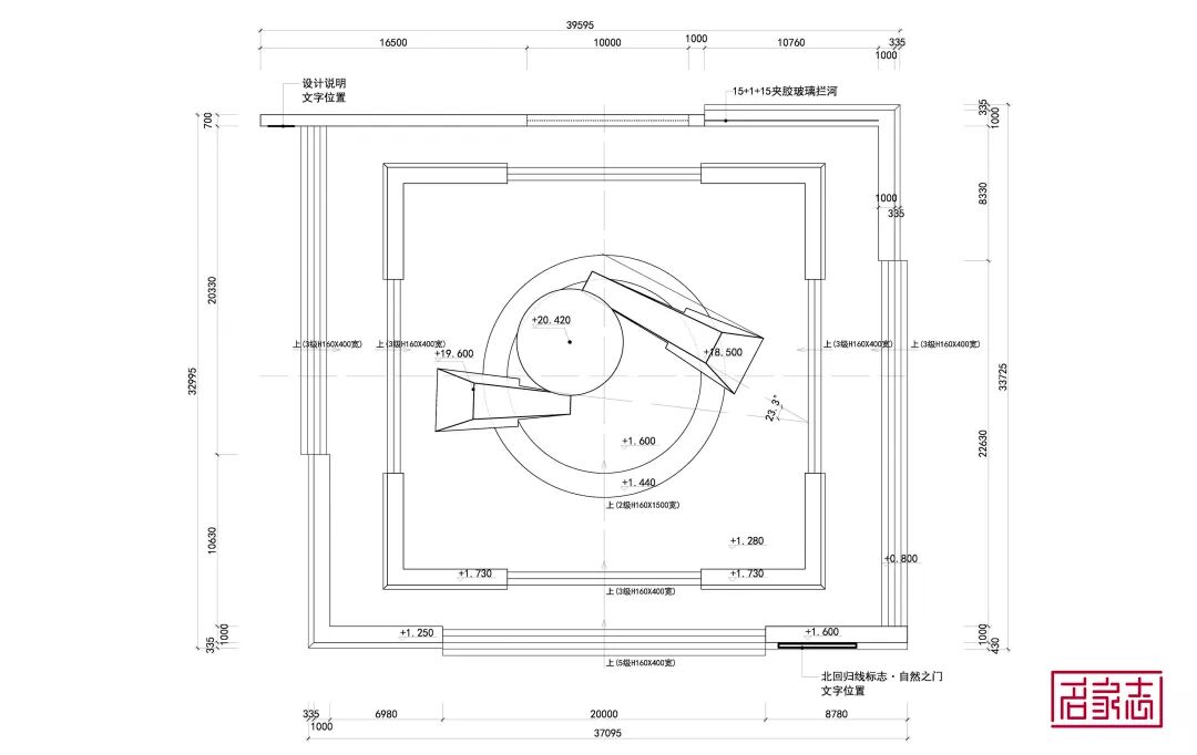
坐落地点 – 汕头市南澳岛云青路(青澳湾北回归线广场)

建成年份 – 2011年9月23日

雕塑总高度 – 20.42m(雕塑+基座)

基座高度 – 1.6m

基座长宽 – 37.86m x 42.06 m

球体直径 – 6.6m

短臂悬挑 – 3.21m  (对应春分日3月21日)

长臂悬挑 – 6.22 m (对应夏至日6月22日)

两柱距离 – 9.23m  (对应秋分日9月23日)

球体底部离基座 – 12.22m(对应冬至日12月22日)

立柱夹角 – 23.5度  (对应北回归线的纬度)

雕塑用材 – 不锈钢、花岗岩、钢筋混凝土





自然之门的诞生


自然之门,中国内陆唯一建设在海岛上的北回归线标志塔,坐落于南澳岛最东端的拥有“中国最美丽海岸线”称誉的青澳湾北回归线广场。


该广场是由广东中环投资集团捐建、董事长林少华先生亲力亲为全程策划建设而成。

△ 从“自然之门”看青澳湾


2007年,林少华邀请林晶华、翁志雄等几位摄影师到南澳岛采风,并随后出版摄影专辑《南澳岛》,引起摄影界关注和驴友热捧。


而当时的青澳湾还没有北回归线广场,也没有自然之门。

△ 青澳湾北回归线广场


2010年5月30日-6月1日,由南澳县人民政府主办的“南澳北回归线标志塔设计方案评审会”于岛上的欣涛度假村酒店隆重举办。


后来经领导及专家的多轮研讨论证与风洞实验评估,最后启用荣获二等奖的郑少文创作的“自然之门”设计方案。

△ 安装球体现场


2011年9月23日,青澳湾北回归线广场举行竣工典礼,北回归线标志塔首次亮相。


此后,越来越多市民游客到北回归线广场参观留影,甚至成为近年外地游客到南澳岛旅游的必“打卡”网红地点。




傍海而筑,相拥粤东明珠


在人们的习惯认知当中,地球的公转形成了四季轮回。当地球围绕太阳公转时,太阳光线直射在地球最北面的点连成一条假想线,即北回归线,又名“夏至线”。


在每年的6月22日夏至当天正午的12点左右,阳光直射北回归线,从这一瞬开始,北半球进入夏季,这一瞬间能够看到“立竿不见影”的天文现象,非常有趣。

△ 门开霞光


我们不妨把目光移回我们所处的城市。汕头的南澳岛素来享有“粤东海上明珠”的美誉,其优越的地理位置,独特的亚热带气候,丰富的自然资源,可谓“人间仙境”。


若在岛上的青澳湾建立一座北回归线标志性坐标建筑物,不失成就另一番独特风景。

△ “自然之门”节气解构图


“自然之门”将此四个最有代表性节气的日期化为建筑语言存于“门洞”里面。


门型雕塑由两根上部有悬臂的立柱夹着地球仪组成,前柱高而悬臂短,后柱低而悬臂长,


短臂悬挑3.21m对应春分的日期(3月21日),


长臂悬挑6.22 m对应夏至的日期(6月22日),


两柱的距离是9.23m是对应秋分的日期(9月23日),


而地球仪的底部距离地面是12.22m刚好是对应冬至的日期(12月22日)。


另外,两根立柱并非平行而是形成23.5度的夹角,正好是对应北回归线的纬度。

△ “自然之门”总平面图

△ “自然之门”正立面图


而最关键的是夏至日,当太阳光线垂直射向北回归线的时候,光线在夏至日的中午12时左右直穿地球仪中心的圆筒孔落到地面,浮现出“立杆不见影”的自然奇观。




设计者:尊重和回归大自然


北回归线标志性建筑物“自然之门”设计方案,是由设计师郑少文所创作。


郑少文于上世纪八十年代毕业于广州美术学院工业设计专业,是中国美术家协会会员、中国建筑学会常务理事、室内设计分会华南区学术委员会副主任委员、中国室内装饰协会设计委员会委员、粤港澳大湾区家居和建筑装饰设计师分会副会长、广东省环境艺术设计行业协会副会长、广东省陈设艺术协会副会长、广东设计师联盟副主席。

△ 郑少文


现任广东建华装饰工程有限公司博一组总工程师、汕头市博一组设计有限公司总设计师。以及汕头市装饰行业协会会长、汕头大学MBA校外导师、汕头工艺美术学校特聘为广东省教育科研“十三五”规划2018年度课题专家。

△ 创作手稿


设计中,创作者郑少文结合北回归线标志性雕塑自身的特定功能与所处环境的独特优势,最终采用了“自然之门”的创作主题。


郑少文介绍说,


环境的污染,生态的恶化……人类对大自然的破坏已经到了一种应该全面反思的地步。


如今,低碳环保与可持续发展不仅成为世界性的共识,更是未来国际发展的一种趋势。


人类起源于自然,应该回归自然,珍惜自然、用一颗敬畏的心与大自然和谐共处。


设计建立“自然之门”,既是对自然规律的一种记录,同时更是提醒着人们,用一种尊重,一种敬畏的态度去回归大自然,从而珍惜生态环境,爱惜人类赖以生存的地球。

△ “自然之门”俯视平面角度




打造滨海邹鲁独特坐标


细看“自然之门”,其设计着实令人眼前一亮。


简洁的构造中不乏大气,雕塑整体呈“门”字造型,两边门柱在任何角度观察下,以移步换景的效果呈现出“一直一斜交错”的视觉享受。

△ 落日蒙太奇


远远望去,仿佛一双柔和却不失力度的双手,用力地将地球高高托起。


两柱一高一低,高柱短臂,低柱长臂,体现一种动感而又平衡之美。


建筑物上端艺术化的球体,通过凹凸的线条,着重强调了当中的海洋部分,不仅寓意鲜明,视觉效果也颇为独特。

△  居高临下


此外,创作者将雕塑的底座设计成长方形状,二层重叠相嵌的基台,从上俯视,恰似中文“回”字,不仅表现出建筑物所处的北归回线地理位置,更是呼应建筑主题,喻示着人类社会对自然的一种回归。


设计时,创作者经过深思熟虑,将春分、夏至、秋分与冬至等重要节气及相关的天文现象巧妙地运用建筑语言将其透过“自然之门”表达出来,更全面地展现了雕塑独具的科普魅力。

△ 若双手轻扶球体


透过不同的角度,创作者将雕塑在体量和力度方面所带来的视觉冲击力一一展现。根据“自然之门”呈现的不同角度,结合日照、雨天、夜间等不同光影环境,营造独特的视觉艺术效果。


同时,为了加强夏至日阳光直射北回归线的效果,设计中地台的受光点增加了球面多棱镜反光板的设计,当光线直射到反光板时,反光板将光线反射到球体的背光面。


如此一来,背光面就会出现精彩的斑光,在欣赏的同时予人一份异样的惊喜。

△ 英歌舞起处


“自然之门”既是一座具有科普功能的标志物,同时又是城市的地标性建筑物。在创作的过程中,如何兼顾科普性与艺术性二者呢?


郑少文说,


这是一座北归回线标志性雕塑,其本身的科普性自然位居首位。设计中过分追求美感而刻意强调建筑物的艺术性,最终的结果反而会适得其反。


让创作理念与建筑物本身的特性自然地流露,如此一来,不仅更好地表现了“自然之门”本身的功能性,展现的效果也更为理想,更深入人心。


△ 实景速写




演绎“一东一西、一海一山”城市韵味


细读“自然之门”,我们有更多的发现与思考,设计师对自然文化的研究之深刻,让我们产生更多的感悟和共鸣。

△ 国家级非遗英歌舞与“自然之门”


从俯视的角度观察“自然之门”,我们还能发现,受光点所在的地球,从某种意义上讲,更像一个八卦太极,而夏至日的受光点,正好处在这二仪其中之一。


太极包含了所有天地万物的共通规律,有人说它是宇宙的模式,有人说它是科学的灯塔……

△ 悬臂托球


在笔者看来,之所以将太极文化运用到“自然之门”中,其涵义更多地彰显了人与自然和谐相处的意义与价值,人本属于自然,来源于自然又依赖自然,人与自然的关系,理应和睦相处,协调发展。


城市发展的同时要与自然共生、共存、共融,这对于促进城市规划的科学化与生态环境的保护工作、乃至实现人类的可持续发展,尤为重要。

△ 面朝大海,春暖花开


著名建筑师沙里宁曾这样说过:“建筑就像一本打开的书,从中你可以看到一座城市的抱负。”


每个城市都有自己的风格和各自的魅力。


透过城市的建筑,我们能够感受她们内心深处的追求,城市的建筑,留在我们心中的往往不仅是视觉的印象,更是感受与体验的记忆。

△ 最美海岸线——青澳湾


“自然之门”已成为汕头市第二座北回归线标志性建筑物,它与鸡笼山北回归线标志塔遥相呼应,一东一西,一海一山。


更好地诠释一种“阴阳调和”的和谐发展环境,突显这座海洋文明与大陆文化互相交织下的城市的特殊韵味。

△ 悬臂托球


作为一项功能性的公共艺术,北回归线标志物不仅展现着特殊的城市文化,更附有着标志性质的文化气质。


在城市空间环境中,她将以其他艺术不能替代的形式发挥着积极的作用,从艺术的角度传递着城市文化历史的信息,折射出一座城市的神韵和风采。






《自然之门》雕塑地址 _ 汕头市云青路(北回归线广场)



总策编 | CREATOR

郑仲标

文稿 | WRITER

李嫚玉

摄影 | PHOTOGRAPHY

林少华   马   卡

翁志雄   连伟健

画作 | PAINTING

郑少文

资料 | MATERIAL

郑少文 提供

书法 | CALLIGRAPHY

吴著明

编辑 | EDITOR

马己芬


刊载于《建筑文化》NO.17

本文对作者原文有删减及综合整理



声明:本文不代表我们的观点,仅供读者参考。文章版权归原作者所有,如有侵权,请联系我们进行删除。

潮 商

文化的境界  ·  财富的智慧


长按二维码关注“潮商”



路过

雷人

握手

鲜花

鸡蛋

相关分类

Archiver|手机版|小黑屋|大国人文栏目组 版权所有

GMT+8, 2026-5-30 23:48 , Processed in 0.035743 second(s), 16 queries .

Powered by Discuz! X3.4

© 2001-2017 Comsenz Inc.

返回顶部